postdigital architecture"/>

Josh Myers  



Teaching
Kent State College of Architecture and Environmental Design


Fall 2024
_P1 Cabin
_P2 Pied-à-Terre
Spring 2024
_P1 Tower
_P2 Fire Station
Fall 2023
_P1 Festival Marquee
_P2 Kindergarten
Spring 2023
_P1 Pavilion
_P2 Research Outpost
Fall 2022
_P1 Playground
_P2 Kindergarten

Work
2018 to current

Common Ground
AAPWC
server_FARM
Button Mash
Dirty Business

CV
Mark

Fall 2024




ARCH 20101
Second Year Design Studio I
Coordinated

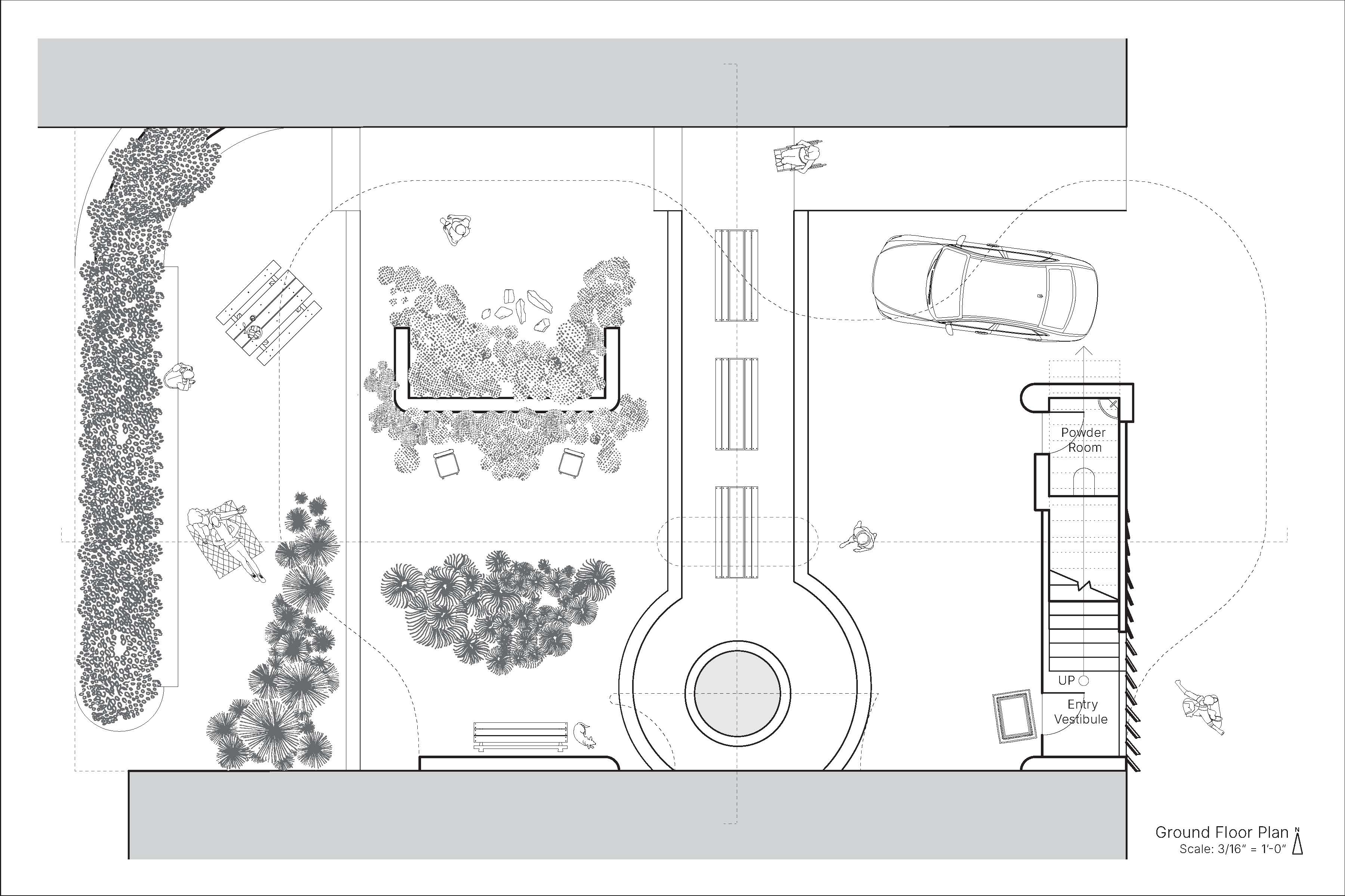
Project 2 - Pied-à-Terre


A pied-à-terre is traditionally a secondary reclusive residence located in a city. This domestic setting, located in an infill site in downtown Kent, is intended to be reflexive and characteristic of the attitude of the occupants who temporarily take up residence. The movement or posture studied in Project 1 was carried into Project 2 as a catalyst for the building’s formal/spatial conditions.



Site Plan
152-154 N. Water Street, Kent, OH 44240




Ryan Shaw



Aidan Van Dussen



Lindsay Nagy



Ella McCollom




Mark